English
الرئيسية
من نحن
كلمة الرئيس
المدونة
أخبارنا
المشاريع
الخدمات
التوظيف
العملاء
إتصل بنا
الرئيسية
/
المشاريع
/
العامة والإدارية
/
فروع بنك الجزيرة
فروع بنك الجزيرة
Loading Images…
al_jazirah_bank_branches_main.jpg
al_jazirah_bank_branches_1.jpg
al_jazirah_bank_branches_2.jpg
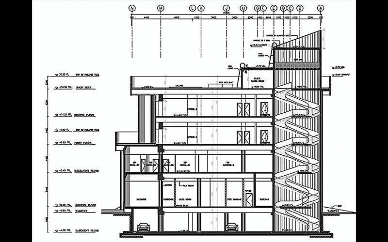
معلومات المشروع
بنك الجزيرة
المالك
جميع المناطق في جميع أنحاء المملكة العربية السعودية
الموقع
التصميم
نطاقالعمل
3,700.00 م
2
مساحةالأرض
800.00 م
2
مساحهالبناء
2
طابق
نسبة المشاريع الأخرى
مجمع بنجلاديش السكني
المدينة الرياضية لنادي الفيصلي
المبنى الإداري ومكاتب أعضاء هيئة التدريس بمستشفى الملك عبد العزيز الجامعي
فروع البنك الزراعي ( صندوق التنمية الزراعية )