English
الرئيسية
من نحن
كلمة الرئيس
المدونة
أخبارنا
المشاريع
الخدمات
التوظيف
العملاء
إتصل بنا
الرئيسية
/
المشاريع
/
الصناعية
/
مستودع جدة
مستودع جدة
Loading Images…
warehouse-jed-pic2.jpg
jeddah_warehouse_img_banner1.jpg
jeddah_warehouse_main_title.jpg
warehouse-jed-pic3.jpg
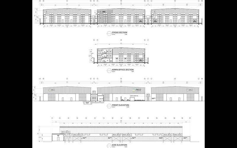
معلومات المشروع
الحياةفارما
المالك
جدة
الموقع
تصميم / إشراف
نطاقالعمل
10,340.00 م
2
مساحةالأرض
12,000,000.00 SAR
التكلفة
نسبة المشاريع الأخرى
مشروع الصافي – دانون
مجمع تفريخ الجمبري ومرافق الدعم
مركز الشرق لبيع قطع الغيار المستعملة للسيارات
انشاء شبكات الري والصرف بميناء ينبع